Product Overview
D / DG Horizontal Multistage Boiler Feed Pump is a horizontal, single-suction, segmented multistage centrifugal pump designed for high-pressure clean water and boiler feed systems.
It provides staged pressure build-up for continuous high-head water supply under industrial operating conditions.
It is suitable for boiler feedwater systems, mine drainage, high-rise building pressurization, and industrial clean water transfer.
Model Designation

Applications
- Boiler feed systems under medium and high-pressure steam operation
- Mine drainage requiring multi-stage pressure lifting
- High-rise building secondary water supply systems
- Industrial high-head clean water transfer pipelines
- Pressure boosting systems for municipal water distribution
Engineering Advantages
- Segmented casing structure allows head adjustment by varying stage number
- Cast iron impellers with static balancing reduce hydraulic pulsation
- Balancing disc assembly controls axial thrust under high-pressure conditions
- Replaceable seal rings and shaft sleeves extend maintenance cycle
System Components
The D / DG Horizontal Multistage Boiler Feed Pump mainly consists of:
- Pump shaft
- Impeller assembly
- Diffuser / guide vane
- Suction section(
- Intermediate section
- Discharge section
- Balancing disc & balancing ring
- Shaft sleeve
- Seal ring
- Bearing housing & bearings
Technical Specifications
Service Conditions
- Indoor installation recommended
- Ambient temperature ≤ 40°C
- Relative humidity ≤ 95%
- Stable foundation required to minimize vibration transmission
Operating Conditions
- Medium: Clean water or non-corrosive liquid without solid particles
- D type maximum temperature: ≤ 80°C
- DG type maximum temperature: ≤ 110°C
- Rotation direction: Clockwise when viewed from motor side
Performance Range
- Flow rate: 6.3 – 450 m³/h
- Head: 50 – 650 m
- Power range: 2.2 – 400 kW
- Speed: 1450 / 2900 rpm
- Liquid temperature: ≤ 80°C (D) / ≤ 110°C (DG)
- Working pressure: ≤ 6.0 MPa
Detailed parameter tables are provided below.
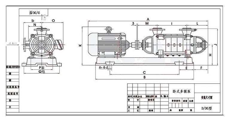
Installation & Dimensions
Outline Drawing

Performance Data
|
1
|
Suction Section
|
2
|
Discharge Section
|
3
|
Middle Section
|
4
|
Diffuser
|
5
|
Impeller
|
6
|
Tail Cover
|
7
|
Seal Ring
|
|
8
|
Diffuser Sleeve
|
9
|
Balance Ring
|
10
|
Balance Disc
|
11
|
Packing Ring
|
12
|
Shaft
|
13
|
Shaft Sleeve A
|
14
|
Shaft Sleeve B
|
|
15
|
Left Bearing Assembly
|
16
|
Right Bearing Assembly
|
17
|
Bearing Collar
|
18
|
Tie Bolt
|
19
|
Packing Gland
|
Performance Parameters
|
Model
|
Rotational Speed
|
Flow Rate
|
Head
|
Efficiency
|
Power (kW) |
NPSHr
|
||
|
(r/min)
|
(m3/h)
|
(L/s)
|
(m)
|
(%)
|
Shaft Power
|
Motor Power
|
(m)
|
|
|
DG6-25×3
|
2950
|
6.3
|
1.75
|
75
|
45
|
2.86
|
5.5
|
2
|
|
DG6-25×4
|
2950
|
6.3
|
1.75
|
100
|
45
|
3.81
|
7.5
|
2
|
|
DG6-25×5
|
2950
|
6.3
|
1.75
|
125
|
45
|
4.77
|
7.5
|
2
|
|
DG6-25×6
|
2950
|
6.3
|
1.75
|
150
|
45
|
5.72
|
11
|
2
|
|
DG6-25×7
|
2950
|
6.3
|
1.75
|
175
|
45
|
6.67
|
11
|
2
|
|
DG6-25×8
|
2950
|
6.3
|
1.75
|
200
|
45
|
7.63
|
15
|
2
|
|
DG6-25×9
|
2950
|
6.3
|
1.75
|
225
|
45
|
8.52
|
15
|
2
|
|
DG6-25×10
|
2950
|
6.3
|
1.75
|
250
|
45
|
9.53
|
18.5
|
2
|
|
DG6-25×11
|
2950
|
6.3
|
1.75
|
275
|
45
|
10.5
|
18.5
|
2
|
|
DG6-25×12
|
2950
|
6.3
|
1.75
|
300
|
45
|
11.44
|
18.5
|
2
|
|
Model
|
Rotational Speed
|
Flow Rate
|
Head
|
Efficiency
|
Power (kW)
|
NPSHr
|
||
|
(r/min)
|
(m3/h)
|
(L/s)
|
(m)
|
(%)
|
Shaft Power
|
Motor Power
|
(m)
|
|
|
DG12-25×3
|
2950
|
12.5
|
3.47
|
75
|
54
|
4.73
|
7.5
|
2
|
|
DG12-25×4
|
2950
|
12.5
|
3.47
|
100
|
54
|
6.3
|
11
|
2
|
|
DG12-25×5
|
2950
|
12.5
|
3.47
|
125
|
54
|
7.88
|
11
|
2
|
|
DG12-25×6
|
2950
|
12.5
|
3.47
|
150
|
54
|
9.46
|
15
|
2
|
|
DG12-25×7
|
2950
|
12.5
|
3.47
|
175
|
54
|
11
|
15
|
2
|
|
DG12-25×8
|
2950
|
12.5
|
3.47
|
200
|
54
|
12.51
|
18.5
|
2
|
|
DG12-25×9
|
2950
|
12.5
|
3.47
|
225
|
54
|
14.18
|
18.5
|
2
|
|
DG12-25×10
|
2950
|
12.5
|
3.47
|
250
|
54
|
15.76
|
22
|
2
|
|
DG12-25×11
|
2950
|
12.5
|
3.47
|
275
|
54
|
17.34
|
22
|
2
|
|
DG12-25×12
|
2950
|
12.5
|
3.47
|
300
|
54
|
18.9
|
30
|
2
|
|
Model
|
Rotational Speed
|
Flow Rate
|
Head
|
Efficiency
|
Power (kW)
|
NPSHr
|
||
|
(r/min)
|
(m3/h)
|
(L/s)
|
(m)
|
(%)
|
Shaft Power
|
Motor Power
|
(m)
|
|
|
DG25-30×3
|
2950
|
25
|
6.94
|
90
|
62
|
9.88
|
15
|
2
|
|
DG25-30×4
|
2950
|
25
|
6.94
|
120
|
62
|
13.1
|
18.5
|
2
|
|
DG25-30×5
|
2950
|
25
|
6.94
|
150
|
62
|
16.47
|
22
|
2
|
|
DG25-30×6
|
2950
|
25
|
6.94
|
180
|
62
|
19.77
|
30
|
2
|
|
DG25-30×7
|
2950
|
25
|
6.94
|
210
|
62
|
23.1
|
30
|
2
|
|
DG25-30×8
|
2950
|
25
|
6.94
|
240
|
62
|
26.4
|
37
|
2
|
|
DG25-30×9
|
2950
|
25
|
6.94
|
270
|
62
|
29.65
|
37
|
2
|
|
DG25-30×10
|
2950
|
25
|
6.94
|
300
|
62
|
32.9
|
4.5
|
2
|
|
Model
|
Rotational Speed
|
Flow Rate
|
Head
|
Efficiency
|
Power (kW)
|
NPSHr
|
||
|
(r/min)
|
(m3/h)
|
(L/s)
|
(m)
|
(%)
|
Shaft Power
|
Motor Power
|
(m)
|
|
|
DG46-30×3
|
2950
|
46
|
12.8
|
90
|
70
|
16.11
|
22
|
3
|
|
DG46-30×4
|
2950
|
46
|
12.8
|
120
|
70
|
21.48
|
30
|
3
|
|
DG46-30×5
|
2950
|
46
|
12.8
|
150
|
70
|
26.85
|
37
|
3
|
|
DG46-30×6
|
2950
|
46
|
12.8
|
180
|
70
|
32.21
|
37
|
3
|
|
DG46-30×7
|
2950
|
46
|
12.8
|
210
|
70
|
37.58
|
45
|
3
|
|
DG46-30×8
|
2950
|
46
|
12.8
|
240
|
70
|
42.95
|
55
|
3
|
|
DG46-30×9
|
2950
|
46
|
12.8
|
270
|
70
|
48.32
|
55
|
3
|
|
DG46-30×10
|
2950
|
46
|
12.8
|
300
|
70
|
53.69
|
75
|
3
|
|
Model
|
Rotational Speed
|
Flow Rate
|
Head
|
Efficiency
|
Power (kW)
|
NPSHr | ||
|
(r/min)
|
(m3/h)
|
(L/s)
|
(m)
|
(%)
|
Shaft Power
|
Motor Power |
(m)
|
|
|
DG46-50×3
|
2950
|
46
|
12.8
|
150
|
63
|
29.83
|
37
|
3
|
|
DG46-50×4
|
2950
|
46
|
12.8
|
200
|
63
|
39.77
|
45
|
3
|
|
DG46-50×5
|
2950
|
46
|
12.8
|
250
|
63
|
49.71
|
55
|
2.8
|
|
DG46-50×6
|
2950
|
46
|
12.8
|
300
|
63
|
59.65
|
75
|
2.8
|
|
DG46-50×7
|
2950
|
46
|
12.8
|
350
|
63
|
69.6
|
90
|
2.8
|
|
DG46-50×8
|
2950
|
46
|
12.8
|
400
|
63
|
79.54
|
90
|
2.8
|
|
DG46-50×9
|
2950
|
46
|
12.8
|
450
|
63
|
89.48
|
110
|
2.8
|
|
DG46-50×10
|
2950
|
46
|
12.8
|
500
|
63
|
99.42
|
110
|
2.8
|
|
DG46-50×11
|
2950
|
46
|
12.8
|
550
|
63
|
109.36
|
132
|
2.8
|
|
DG46-50×12
|
2950
|
46
|
12.8
|
600
|
63
|
119.3
|
132
|
2.8
|
Installation Diagram

Performance Data
| Model |
A
|
B
|
C
|
E
|
F
|
L
|
I
|
M
|
N
|
O
|
H
|
J
|
b
|
K
|
P
|
Q
|
n-φd
|
|
DG6-25×3
|
1175
|
885
|
600
|
145
|
192
|
250
|
180
|
265
|
135
|
210
|
230
|
440
|
170
|
413
|
390
|
390
|
4-φ24
|
|
DG6-25×4
|
1225
|
985
|
650
|
195
|
142
|
250
|
230
|
265
|
135
|
210
|
230
|
400
|
170
|
413
|
390
|
390
|
4-φ24
|
|
DG6-25×5
|
1275
|
985
|
650
|
195
|
192
|
250
|
280
|
265
|
135
|
210
|
230
|
400
|
170
|
413
|
390
|
390
|
4-φ24
|
|
DG6-25×6
|
1450
|
1205
|
785
|
245
|
141
|
250
|
330
|
265
|
165
|
255
|
240
|
410
|
170
|
465
|
435
|
435
|
4-φ24
|
|
DG6-25×7
|
1500
|
1205
|
785
|
245
|
191
|
250
|
380
|
265
|
165
|
255
|
240
|
410
|
170
|
465
|
435
|
435
|
4-φ24
|
|
DG6-25×8
|
1550
|
1305
|
835
|
295
|
141
|
250
|
430
|
265
|
165
|
255
|
240
|
410
|
170
|
465
|
435
|
435
|
4-φ24
|
|
DG6-25×9
|
1600
|
1305
|
835
|
295
|
191
|
250
|
480
|
265
|
165
|
255
|
240
|
410
|
170
|
465
|
435
|
435
|
4-φ24
|
|
DG6-25×10
|
1695
|
1500
|
935
|
370
|
91
|
250
|
530
|
265
|
165
|
255
|
240
|
410
|
170
|
465
|
435
|
435
|
4-φ24
|
|
DG6-25×11
|
1745
|
1500
|
935
|
370
|
141
|
250
|
580
|
265
|
165
|
255
|
240
|
410
|
170
|
465
|
435
|
435
|
4-φ24
|
|
DG6-25×12
|
1795
|
1500
|
935
|
370
|
191
|
250
|
630
|
265
|
165
|
255
|
240
|
410
|
170
|
465
|
435
|
435
|
4-φ24
|
|
Model
|
A
|
B
|
C
|
E
|
F
|
L
|
I
|
M
|
N
|
O
|
H
|
J
|
b
|
K
|
P
|
Q
|
n-φd
|
|
DG12-25×3
|
1175
|
874
|
600
|
140
|
180
|
250
|
180
|
265
|
135
|
210
|
230
|
400
|
170
|
413
|
395
|
295
|
4-φ25
|
|
DG12-25×4
|
1350
|
1040
|
710
|
165
|
183
|
250
|
230
|
265
|
165
|
255
|
240
|
410
|
170
|
465
|
430
|
430
|
4-φ25
|
|
DG12-25×5
|
1400
|
1090
|
730
|
190
|
183
|
250
|
280
|
265
|
165
|
255
|
240
|
410
|
170
|
465
|
430
|
430
|
4-φ25
|
|
DG12-25×6
|
1450
|
1140
|
740
|
232
|
183
|
250
|
330
|
265
|
165
|
255
|
240
|
410
|
170
|
465
|
430
|
430
|
4-φ25
|
|
DG12-25×7
|
1500
|
1190
|
780
|
242
|
183
|
250
|
380
|
265
|
165
|
255
|
240
|
410
|
170
|
465
|
430
|
430
|
4-φ25
|
|
DG12-25×8
|
1595
|
1284
|
830
|
266
|
183
|
250
|
430
|
265
|
165
|
255
|
240
|
410
|
170
|
465
|
430
|
430
|
4-φ25
|
|
DG12-25×9
|
1645
|
1334
|
850
|
294
|
183
|
250
|
840
|
265
|
165
|
255
|
240
|
410
|
170
|
465
|
430
|
430
|
4-φ25
|
|
DG12-25×10
|
1720
|
1397
|
870
|
327
|
172
|
250
|
530
|
265
|
180
|
285
|
260
|
430
|
170
|
510
|
400
|
460
|
4-φ25
|
|
DG12-25×11
|
1770
|
1447
|
900
|
347
|
172
|
250
|
580
|
265
|
180
|
285
|
260
|
430
|
170
|
510
|
400
|
460
|
4-φ25
|
|
DG12-25×12
|
1925
|
1571
|
980
|
371
|
176
|
250
|
633
|
265
|
200
|
310
|
260
|
450
|
170
|
555
|
400
|
500
|
4-φ25
|
|
Model
|
A
|
B
|
C
|
E
|
F
|
L
|
I
|
M
|
N
|
O
|
H
|
J
|
b
|
K
|
P
|
Q
|
n-φd
|
|
DG25-30×3
|
1450
|
1110
|
760
|
185
|
227
|
285
|
230
|
330
|
165
|
255
|
250
|
460
|
210
|
475
|
460
|
460
|
4-φ30
|
|
DG25-30×4
|
1560
|
1219
|
850
|
204
|
228
|
285
|
295
|
330
|
165
|
255
|
250
|
460
|
210
|
475
|
460
|
460
|
4-φ30
|
|
DG25-30×5
|
1650
|
1297
|
880
|
237
|
228
|
285
|
360
|
330
|
180
|
285
|
260
|
470
|
210
|
510
|
460
|
460
|
4-φ30
|
|
DG25-30×6
|
1825
|
1432
|
970
|
262
|
225
|
285
|
425
|
330
|
200
|
310
|
280
|
490
|
210
|
555
|
460
|
505
|
4-φ30
|
|
DG25-30×7
|
1885
|
1497
|
1000
|
297
|
225
|
285
|
490
|
330
|
200
|
310
|
280
|
490
|
210
|
555
|
460
|
505
|
4-φ30
|
|
DG25-30×8
|
1950
|
1562
|
1030
|
332
|
225
|
285
|
555
|
330
|
200
|
310
|
280
|
490
|
210
|
555
|
460
|
505
|
4-φ30
|
|
DG25-30×9
|
2015
|
1627
|
1080
|
347
|
225
|
285
|
620
|
330
|
200
|
310
|
280
|
490
|
210
|
555
|
460
|
505
|
4-φ30
|
|
DG25-30×10
|
2150
|
1728
|
1120
|
398
|
222
|
285
|
685
|
330
|
225
|
345
|
305
|
515
|
210
|
610
|
540
|
460
|
4-φ30
|
|
Model
|
A
|
B
|
C
|
E
|
F
|
L
|
I
|
M
|
N
|
O
|
H
|
J
|
b
|
K
|
P
|
Q
|
n-φd
|
|
DG46-30×3
|
1520
|
1167
|
845
|
130
|
228
|
285
|
230
|
330
|
180
|
285
|
260
|
470
|
210
|
510
|
460
|
460
|
4-φ30
|
|
DG46-30×4
|
1690
|
1302
|
850
|
242
|
225
|
285
|
295
|
330
|
200
|
310
|
280
|
490
|
210
|
555
|
460
|
505
|
4-φ30
|
|
DG46-30×5
|
1755
|
1367
|
910
|
247
|
225
|
285
|
360
|
330
|
200
|
310
|
280
|
490
|
210
|
555
|
460
|
505
|
4-φ30
|
|
DG46-30×6
|
1820
|
1432
|
935
|
287
|
225
|
285
|
425
|
330
|
200
|
310
|
280
|
490
|
210
|
555
|
460
|
505
|
4-φ30
|
|
DG46-30×7
|
1925
|
1532
|
1010
|
302
|
223
|
285
|
490
|
330
|
225
|
345
|
305
|
515
|
210
|
610
|
460
|
545
|
4-φ30
|
|
DG46-30×8
|
2105
|
1694
|
1110
|
349
|
221
|
285
|
555
|
330
|
250
|
385
|
330
|
540
|
210
|
655
|
460
|
594
|
4-φ30
|
|
DG46-30×9
|
2170
|
1759
|
1140
|
384
|
221
|
285
|
620
|
330
|
250
|
385
|
330
|
540
|
210
|
655
|
460
|
594
|
4-φ30
|
|
DG46-30×10
|
2305
|
1897
|
1245
|
402
|
219
|
285
|
685
|
330
|
280
|
410
|
360
|
570
|
210
|
720
|
460
|
650
|
4-φ30
|
|
Model
|
A
|
B
|
C
|
E
|
F
|
L
|
I
|
M
|
N
|
O
|
H
|
J
|
b
|
K
|
P
|
Q
|
n-φd
|
|
DG46-50×3
|
1717
|
1317
|
875
|
215
|
246
|
339
|
245
|
353
|
200
|
310
|
360
|
630
|
300
|
635
|
500
|
500
|
4-φ24
|
|
DG46-50×4
|
1817
|
1415
|
925
|
293
|
246
|
339
|
305
|
353
|
225
|
345
|
420
|
690
|
300
|
725
|
500
|
500
|
4-φ24
|
|
DG46-50×5
|
1992
|
1571
|
1020
|
341
|
240
|
339
|
365
|
353
|
250
|
385
|
420
|
690
|
300
|
745
|
500
|
600
|
4-φ24
|
|
DG46-50×6
|
2122
|
1758
|
1130
|
321
|
180
|
339
|
425
|
353
|
280
|
410
|
420
|
690
|
300
|
780
|
500
|
650
|
6-φ24
|
|
DG46-50×7
|
2182
|
1758
|
1130
|
321
|
240
|
339
|
485
|
353
|
280
|
410
|
420
|
690
|
300
|
780
|
500
|
650
|
6-φ24
|
|
DG46-50×8
|
2292
|
1869
|
1180
|
331
|
240
|
339
|
545
|
353
|
280
|
410
|
420
|
690
|
300
|
780
|
500
|
650
|
6-φ24
|
|
DG46-50×9
|
2473
|
2046
|
1330
|
360
|
166
|
339
|
605
|
353
|
323
|
550
|
515
|
785
|
300
|
970
|
500
|
750
|
6-φ24
|
|
DG46-50×10
|
2533
|
2046
|
1330
|
360
|
226
|
339
|
665
|
353
|
323
|
550
|
515
|
785
|
300
|
970
|
500
|
750
|
6-φ24
|
|
DG46-50×11
|
2641
|
2222
|
1480
|
370
|
166
|
339
|
725
|
353
|
323
|
550
|
515
|
785
|
300
|
970
|
500
|
750
|
6-φ24
|
|
DG46-50×12
|
2701
|
2222
|
1480
|
370
|
226
|
339
|
785
|
353
|
323
|
550
|
515
|
785
|
300
|
970
|
500
|
750
|
6-φ24
|
Outline Drawing(2)

Installation Dimensions
|
Dimensions
|
Suction Flange
|
Discharge Flange
|
||||||
|
Model
|
Dg
|
Do
|
D
|
n-do
|
Dg
|
Do
|
D
|
n-do
|
|
D6-25
DG6-25 |
40
|
100
|
130
|
4-φ13.5
|
40
|
110
|
150
|
4-φ17.5
|
|
D12-25
DG12-25 |
50
|
110
|
140
|
4-φ13.5
|
40
|
110
|
150
|
4-φ17.5
|
|
D25-30
DG25-30 |
65
|
130
|
160
|
4-φ17.5
|
65
|
145
|
185
|
8-φ17.5
|
|
D46-30
DG46-30 |
80
|
150
|
190
|
4-φ17.5
|
65
|
145
|
185
|
8-φ17.5
|
|
D46-50
DG46-50 |
80
|
150
170 |
190
215 |
4-φ17.5
8-φ22 |
80
|
170
|
215
|
8-φ22
|
How to Select a Pump Model
- Calculate required flow rate and total head based on system resistance and elevation
- Select stage number ensuring duty point lies within high-efficiency operating range
- Confirm medium temperature to distinguish D or DG configuration
- Verify system pressure does not exceed allowable working pressure
- Consider continuous-duty requirements and plan redundancy if required
Engineering Notes
- Balancing disc clearance must be maintained within design tolerance to ensure axial stability
- Improper alignment between impeller and diffuser may reduce hydraulic efficiency
- For high-temperature DG applications, thermal expansion effects must be considered
- Long pipeline systems should include non-return valves to prevent reverse flow
Compliance & Quality Assurance
- Hydraulic performance test conducted before shipment
- Pressure casing hydrostatic testing
- Impeller static balance verification
- Bearing assembly clearance inspection
- Material traceability for critical pressure components
Safety Notice
- Do not operate under dry-running condition
- Ensure suction system is fully primed before startup
- Do not exceed rated discharge pressure
- Disconnect power supply before maintenance
OEM & Customization
This pump series supports engineered configuration and duty-based matching. Technical adjustments can be made according to system requirements and installation conditions.
Available options include:
- Motor voltage & frequency
- Mechanical seal type and configuration
- Wetted parts material selection
- Surface coating and corrosion protection
Configuration is determined based on duty point and project specifications.
FAQs
Q: Can the pump operate under VFD control?
A: Yes, operation under variable frequency control is permitted within rated hydraulic limits.
Q: What is the maximum allowable working pressure?
A: The maximum allowable working pressure is 6.0 MPa.
Q: What seal options are available?
A: Mechanical seal and packing seal configurations are available.
Q: How is axial thrust controlled?
A: Axial thrust is absorbed through a balancing disc assembly.
Q: What rotational speeds are available?
A: Standard speeds are 1450 rpm and 2900 rpm.
Q: What type of liquid is permitted?
A: Clean water or non-corrosive liquids without solid particles.
Q: What is the allowable maximum liquid temperature?
A: D type ≤ 80°C; DG type ≤ 110°C.